START
LEISTUNGEN
PROJEKTE
PROFIL & KONTAKT
LINKS
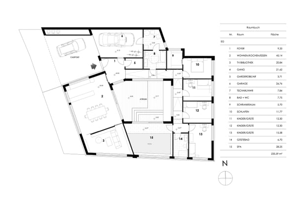
Atriumhaus - Zwettl NĂ–
Entwurf